Volver al listado

Surco, Lima

Junio 2025

Edificio Unión

Este exclusivo edificio combina arquitectura moderna con una composición sobria y atemporal. Sus amplias terrazas, balcones continuos y grandes ventanales permiten una excelente iluminación natural y conexión con el exterior. El proyecto integra áreas verdes, detalles en piedra y estructura metálica que aportan carácter y sofisticación. Un proyecto que combina diseño, funcionalidad y ubicación estratégica, pensado para brindar calidad de vida hoy y alta valorización mañana.

Edificio Unión

  • Área de Terreno

    680.55 m2

  • Área Construida

    3,861.26 m2

  • Termino de Construcción

    Jun. 2026

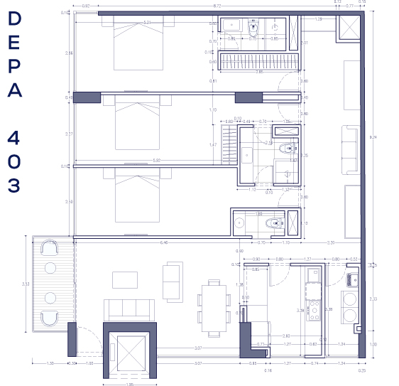
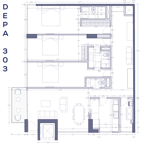
Descripción

  • Sala

    01

  • Baños

    03 y 1/2 (visita)

  • Comedor

    01

  • Dormitorios

    03

  • Sala de TV

    01

  • Área de Servicios

    01 Lavandería

  • Sala de Estudio

    01

  • Escaleras

    02 (principal + sótano)

  • Terraza

    02

  • Cochera interna

    02 Techadas

  • Sótano

    02

  • Cochera externa

    03

  • Jardines

    exteriores

Todas las imágenes son referenciales y pueden presentar modificaciones durante el proyecto.

Acabados

Algunos de los acabados incluidos reflejan nuestro compromiso con la calidad: piedra natural, madera y acero en perfecta armonía entre estilo contemporáneo y calidez.

Recorrido 3D